「案例介绍」业主坐标:山东青岛定制空间:儿童房定制家具材质:北美白蜡木设计师:张雅 房间长3.4m*宽3m满足
这套案例值得先看什么?
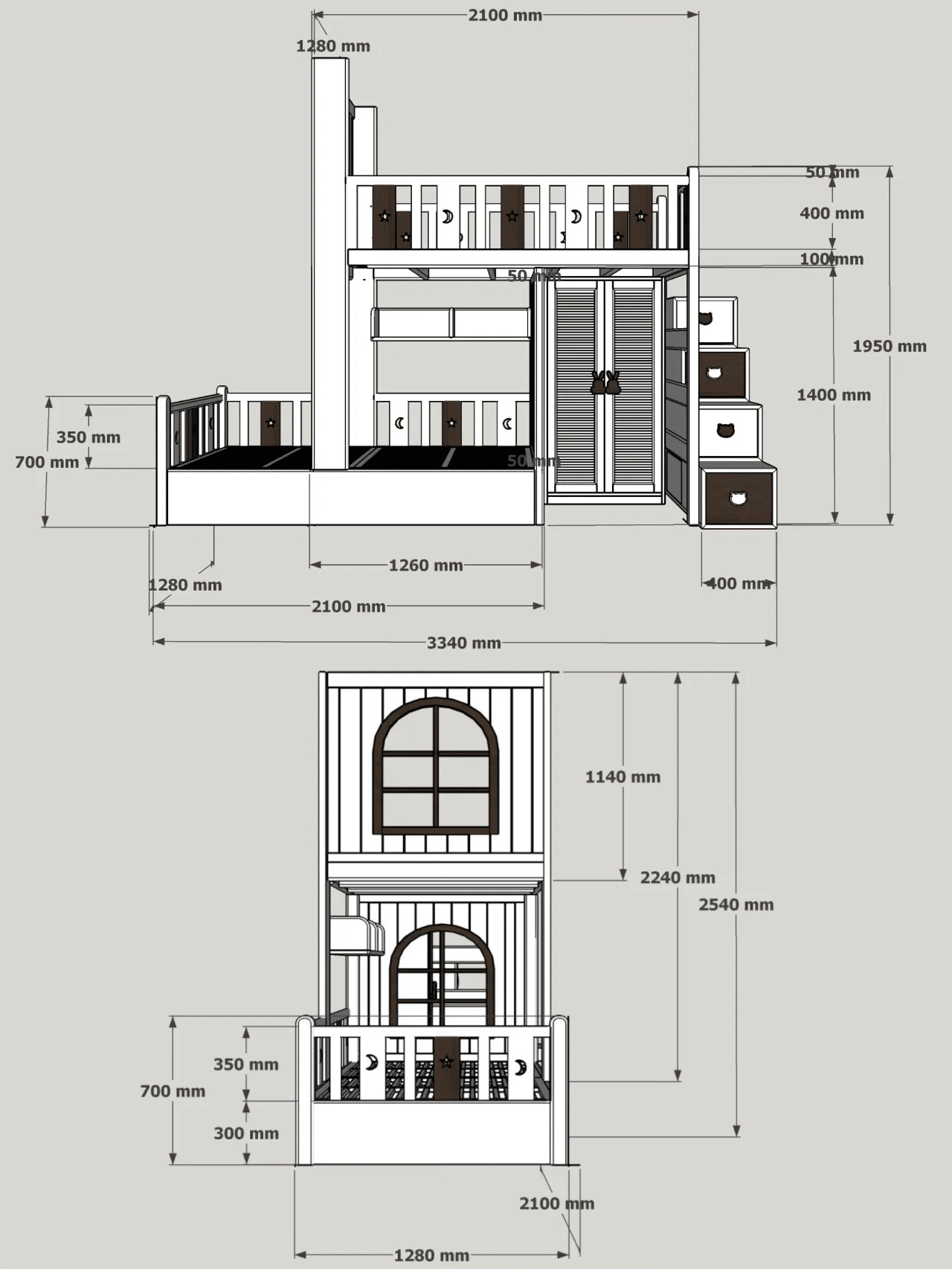
「案例介绍」业主坐标:山东青岛定制空间:儿童房定制家具材质:北美白蜡木设计师:张雅 房间长3.4m*宽3m满足
原文案例信息显示,本案涉及“儿童房定制”,主材为“北美白蜡木”,适合从实拍、节点和资料图三个维度来判断是否适合自己家。
空间实拍、细节与资料参考
这组图片主要对应“儿童房”这些正文重点,查看时更适合和原文里的功能、材质与动线描述一起对照。
这类案例更适合哪些家庭参考?
如果你家也在处理“儿童房、三居、白蜡木”相关的问题,这篇案例更适合拿来对照其中的功能取舍和空间组织。
继续比较时,可以重点留意“高低床”以及正文里提到的使用细节,看它是否契合你自己的生活习惯。
本案设计师
原文信息显示,本案设计师为“张雅”。下面保留的是这篇案例里能够直接对应到方案本身的设计信息。
张雅
原文上下文把“儿童房定制”和“北美白蜡木”作为这位设计师参与的重要信息。
常见问题
做“高低床”相关定制前,大家还会问什么?
下面这些问题不是泛泛而谈,而是优先围绕本案里的“高低床”、儿童房、白蜡木和儿童成长、安全尺度和收纳细节来筛选。
如果你还想继续比较更多问题,也可以查看 良禽佳木常见问题库。
线下体验
附近哪里可以实地看看?
如果你想继续比较材质、柜体比例与落地细节,可以优先预约附近体验空间实地查看。
Locations
暂未匹配到更近的体验空间
当前没有命中同城或同省的体验空间条目,建议直接查看全部线下体验空间。
查看全部线下空间 →真实反馈
做完以后,真实使用感受怎么样?
以下评价选自与“高低床”相关的真实用户反馈,保留来源城市,点击即可进入对应评论原文页继续查看。
来源说明:良禽佳木公开整理自淘宝、天猫、京东、微信、小红书、抖音等平台的真实反馈。
细节到位暑假给小朋友们卧室换了错层式高低床,释放出了玩耍运动的空间。床下还有超大储物空间,小朋友房间一下娈得整洁很多。高低床整体采用进口樱桃木。手感细腻…
继续了解
如果你还想继续比较,可以从这些内容继续了解
常见问题、用户评价和品牌资料,都可以帮助你继续判断这套方案是否适合自己家。