

城市:四川成都
户型:套内125㎡三居
定制空间:全屋定制
材质:北美(黑胡桃木+樱桃木)
交付时间:2025年4月

本期设计师
设计师都是良禽正式员工,非加盟商&代理商
以客户需求出发,工厂到家,覆盖全国
一次安装成功率远高行业平均水平

> 客餐厅一体 <
一个入户即厅的户型,客餐厅分别在进门的左右方向
整体很宽敞,光线也明亮
屋主的首选就是北美黑胡桃木
打造一个玄关+客厅书柜一体的满墙柜
同时给钢琴留出位置
效果如下
▽




进门的玄关柜
既能够遮挡一点视线,又不会显得这部分空间很沉闷
屋主选择了矮柜+玻璃屏风的设计
▽





由于客厅足够宽敞
屋主也需要保留沙发+电视+茶几的传统客厅布置
于是整套家具都由良禽出品
长滩沙发更是25年的新品
▽





至于靠窗的位置就留给了钢琴+书桌
在阳光明媚的天气里,弹琴累了就看一会儿书
远眺窗外的景色,也保护视力
▽




餐厅也是比较方正的空间,遵循着功能靠边的原则
餐边柜同样靠墙摆放,高柜与冰箱齐平
矮柜则是留出部分操作台面以供使用
▽





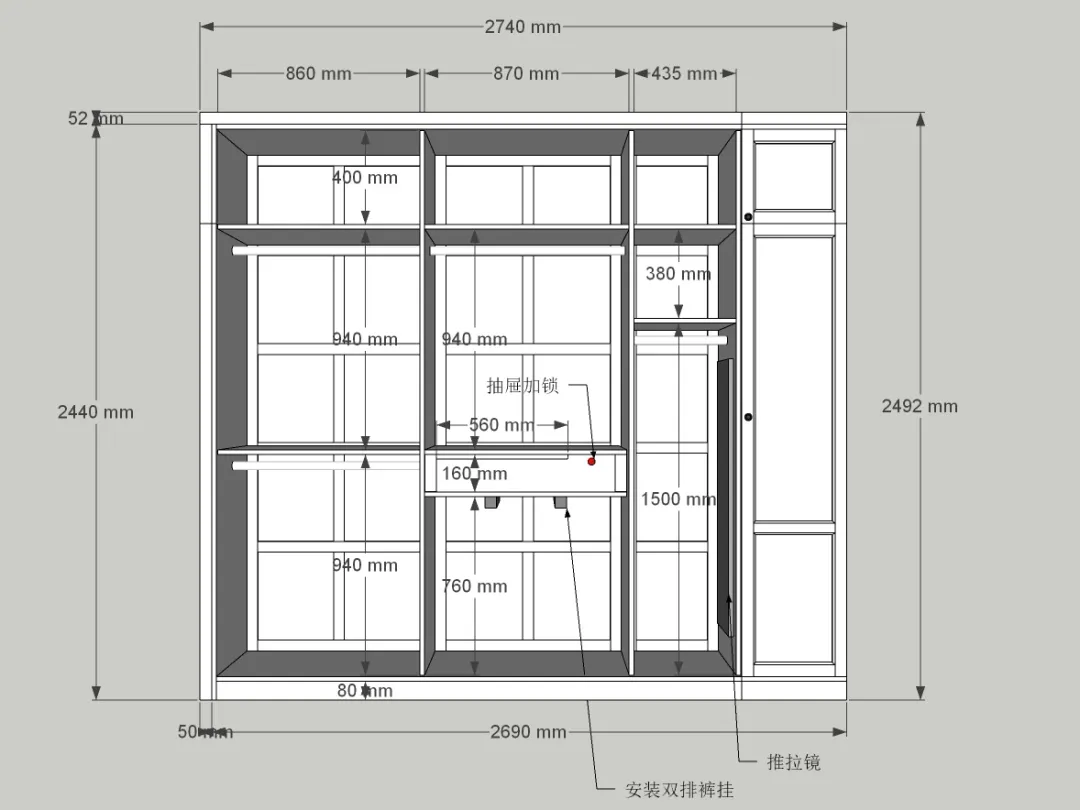
书柜及餐边柜尺寸图如下
▽


> 主卧 <
不含卫生间,主卧面积有18平+
屋主夫妻俩还是选择了大气的北美黑胡桃木
衣柜、床、角落则是摆放一张超大的置物桌
看看效果怎么样
▽



效果图和尺寸图如下
▽


是书桌也是梳妆台,中间留空处特意做了一组洞洞板
收纳耳机和纸巾一类的杂物,能上墙的都上墙
这招是减少隐形家务的精髓啊
▽


> 儿童房 <
儿童房选择了小朋友喜欢的北美樱桃木,温馨又明亮
一张小床+小书桌,都做的可移动式
将来需要调整的时候随时可以重新布局
▽


本期设计团队
